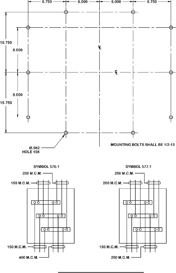
MIL-DTL-24558-30 Terminal Boxes, Connection, Submersible \(15-Foot\), 500 Volts, Three-Phase, Symbol No. 576.1 - Two Circuits For 150 Mcm Cable, One Circuits For 200 Mcm Cable And One Circuit For 400 Mcm Cable, Symbol 577.1 - One Circuit For 150 Mcm Cable, One Circuit For 200 Mcm Cable And Two Circuits For 250 Mcm Cable